
Plan d’usine industriel : relevé, modélisation 2D/3D et optimisation de l’implantation
Un plan d’usine fiable est la base d’un projet de réimplantation, de déménagement industriel,
d’optimisation des flux ou d’intégration de nouvelles lignes. ADICI réalise vos plans
(2D/3D) à partir d’un relevé terrain, et vous aide à sécuriser les décisions techniques et budgétaires.
Qu’est-ce qu’un plan d’usine ?
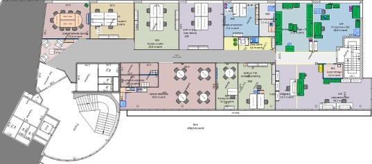
Un plan d’usine (ou plan d’implantation) représente la disposition des bâtiments, zones de production,
utilités, circulations, stocks et équipements. Il sert à décrire l’existant et/ou à
concevoir une future implantation en tenant compte des contraintes opérationnelles, de sécurité et de performance.
Pourquoi un plan d’usine est-il indispensable ?
Dans un contexte industriel, les décisions d’implantation impactent directement la productivité, la sécurité,
la qualité, les délais et les coûts. Aussi un plan fiable permet de limiter les aléas (travaux imprévus, incompatibilités,
distances de sécurité, conflits de circulation, etc.) et d’accélérer la prise de décision.
- Réduire les risques projet : Anticipation des contraintes d’accès, de manutention, d’énergie, et de phasage travaux.
- Optimiser les flux : Réduction des déplacements, meilleure logique de stockage et séquençage des étapes de production.
- Aligner les parties prenantes : Support commun pour direction, production, HSE, maintenance, prestataires et fournisseurs.
Ce que vous obtenez : livrables plan d’usine
C’est pourquoi, selon votre besoin (existant, future implantation, flux), nous pouvons livrer :
- Plan 2D cotés : surfaces, emprises, zones, circulations, repérage des équipements.
- Plan 3D : volumes, hauteurs, interférences, compréhension globale.
- Zonage fonctionnel : production, logistique, stockage, qualité, maintenance, bureaux.
- Plan de circulation : piétons, chariots, camions, zones de croisement, sens uniques.
- Cartographie des utilités : électricité, air comprimé, gaz, eaux, réseaux, évacuations.
- Scénarios d’implantation : comparatifs (avantages/inconvénients, risques, impacts).
Les formats possibles pour les plans sont : MS Visio, PDF haute définition, DWG/DXF, images, exports adaptés à votre organisation (selon votre environnement).
Notre méthodologie : du relevé terrain à la validation
- Cadrage : définition du périmètre, du niveau de détail attendu, des zones critiques et des contraintes (HSE, accès, horaires, confidentialité).
- Relevé terrain : Mesures et repérages (bâtiments, emprises machines, poteaux, réseaux visibles, accès, hauteurs) afin de sécuriser la précision du plan.
- Modélisation 2D/3D : Production des plans et structuration des calques/objets (zones, équipements, flux, utilités) pour une exploitation opérationnelle.
- Ateliers de validation : Revue avec production, maintenance, HSE et direction pour corriger, arbitrer et valider les choix d’implantation.
- Restitution & exploitation : Livraison des fichiers, recommandations d’implantation et, si besoin, support au pilotage (phasage, planning, coordination).
Besoin d’un plan d’usine pour un transfert / réimplantation ? Parler à un expert
Les cas d’usage fréquents
- Réimplantation / amélioration continue : Réorganisation des lignes, création d’une zone logistique, suppression de déplacements inutiles.
- Transfert / déménagement industriel : Inventaire et emprises, contraintes d’accès, préparation du rebranchement utilités, phasage.
- Extension / nouveaux équipements : Intégration de nouvelles machines, anticipation des interférences, validation des hauteurs et circulations.
- Audit sécurité & circulation : Plan piétons/chariots, zones à risque, améliorations et signalétique.
Qualité, précision et exigences opérationnelles pour un plan d’usine
Un plan d’usine doit être exploitable : précision dimensionnelle, cohérence des repères, versioning, et lisibilité par les équipes terrain.
Nous accordons une attention particulière à :
- La précision des cotes et cohérence des unités.
- La gestion des versions (avant/après, scénarios, validations).
- La lisibilité : conventions, zonage, repères machines.
- Les contraintes HSE : circulations, évacuations, zones sensibles (selon votre contexte).
FAQ – Plan d’usine
Quel niveau de détail faut-il pour un plan d’usine ?
Cela dépend de l’objectif : un plan “macro” suffit pour du zonage et des surfaces, tandis qu’un projet
d’implantation ou de transfert nécessite le détail des emprises machines, accès maintenance, réseaux et circulations.
Plan 2D ou 3D : que choisir ?
Le 2D est indispensable pour les métrés, repérages et échanges techniques. Le 3D facilite la compréhension,
la communication projet et la comparaison de scénarios, notamment en comité de pilotage.
Combien de temps faut-il pour réaliser un plan d’usine ?
Le délai varie selon la surface, la complexité et le niveau de détail. Une approche par lots (zones prioritaires)
permet souvent d’accélérer la mise à disposition d’un premier livrable utile.
Quels sont les livrables habituellement fournis ?
Plan 2D coté, plan 3D si nécessaire, plan de circulation, zonage, et selon les projets : flux, utilités,
scénarios d’implantation et supports de validation.
Parlons de votre plan d’usine
Décrivez votre contexte (surface, activité, objectifs : implantation, transfert, flux, sécurité).
Nous vous recontactons pour cadrer le périmètre et vous proposer une approche adaptée.









Commentaires récents